Skip to content

rakusam architecture bureau

architecture studio

  • projects
  • cassetto
  • about rakusam
  • contact

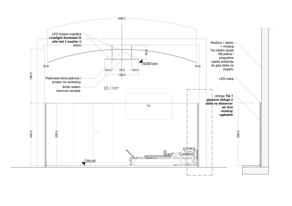
Central point Pilates retail

Central Point, Podgorica, 2021

Concept design – Executive design, built

https://pilatesplace.me/

Roštiljijada restaurant

back to projects

Share this:

  • Share on X (Opens in new window) X
  • Share on Facebook (Opens in new window) Facebook
Like Loading...
Create a website or blog at WordPress.com
    • rakusam architecture bureau
    • Sign up
    • Log in
    • Copy shortlink
    • Report this content
    • Manage subscriptions

Loading Comments...

    %d